Met het technisch tekenen van grondplannen, aanzichten tot aan maatwerktekeningen, kan de uitvoerende partij goed aangestuurd worden en wordt het eindresultaat zoals het is bedacht. Daarnaast kunnen deze tekeningen een goed uitgangspunt zijn om offertes aan te vragen bij verschillende partijen.
Met het technisch tekenen van grondplannen, aanzichten tot aan maatwerktekeningen, kan de uitvoerende partij goed aangestuurd worden en wordt het eindresultaat zoals het is bedacht. Daarnaast kunnen deze tekeningen een goed uitgangspunt zijn om offertes aan te vragen bij verschillende partijen.


















Een grondplan heb je nodig om de routing van je ontwerp te bepalen. Hierin zie je of alles in de ruimte past zoals het is bedacht. Met een gemaatvoerd grondplan weet de uitvoerende partij precies hoe de ruimte opgedeeld moet worden en waar voorzieningen moeten worden getroffen voor technische aansluitingen.
Zie in de carousel een kleine selectie van diverse uitgevoerde projecten zoals een restaurant, hotel, kantoorruimte en particuliere woonruimte.
Aanzichttekeningen geven aan hoe het frontale beeld wordt van een wand of van een meubel. Hierin wordt informatie verteld die je in een grondplan niet kunt aflezen, zoals hoogtematen en materialisatie.
Zie in de carousel een kleine selectie van diverse uitgevoerde projecten zoals een ijssalon, hotel, restaurant, kantoorruimte en grand cafe.
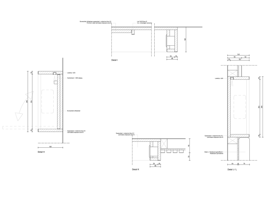
Een zelf ontworpen bar of meubel wordt tot in detail uitgetekend zodat een interieurbouwer precies weet wat hij/zij moet maken. Daarnaast kan een gedetailleerde tekening gebruikt worden om offertes aan te vragen, zodat je een goede indicatie krijgt wat het gaat kosten.
Zie in de carousel een kleine selectie van diverse uitgevoerde maatwerkonderdelen zoals een bar, receptiemeubel, bank en een bed-achterwand.
Een grondplan heb je nodig om de routing van je ontwerp te bepalen. Hierin zie je of alles in de ruimte past zoals het is bedacht. Met een gemaatvoerd grondplan weet de uitvoerende partij precies hoe de ruimte opgedeeld moet worden en waar voorzieningen moeten worden getroffen voor technische aansluitingen.
Zie in de carousel een kleine selectie van diverse uitgevoerde projecten zoals een restaurant, hotel, kantoorruimte en particuliere woonruimte.






Aanzichttekeningen geven aan hoe het frontale beeld wordt van een wand of van een meubel. Hierin wordt informatie verteld die je in een grondplan niet kunt aflezen, zoals hoogtematen en materialisatie.
Zie in de carousel een kleine selectie van diverse uitgevoerde projecten zoals een ijssalon, hotel, restaurant, kantoorruimte en grand cafe.





Een zelf ontworpen bar of meubel wordt tot in detail uitgetekend zodat een interieurbouwer precies weet wat hij moet maken. Daarnaast kan een gedetailleerde tekening gebruikt worden om offertes aan te vragen zodat je een goede indicatie krijgt wat het gaat kosten.
Zie in de carousel een kleine selectie van diverse uitgevoerde maatwerkonderdelen zoals een bar, receptiemeubel, bank en een bed-achterwand.







© Design Online | 2026